HB9CV – na pasmo 6 m
Poprzednia wersja mojej anteny został nieco zmodyfikowana.
1. Zwiększyłem odległość elementu zasilającego od wibratora i reflektora
2. Zmieniłem kondensator i umieściłem go wewnątrz boomu
3. Rezonans anteny przesunąłem niżej – 50,250 MHz / SWR 1,1
(wydłużenie wibratora i reflektora)
Antena w fazie prób, przed zamontowaniem na dachu
Podłączenie zasilania do wibratora łącznikiem z profilu aluminiowego
Wyprowadzenie przewodem aluminiowym zasilania od gniazda UC1 z wewnątrz boomu
(wewnątrz boomu znajduje się kondensator)
Dystans zapewniają elementy z tworzywa
Podłączenie zasilania
Antena w fazie testów
Antena zamontowana na dachu
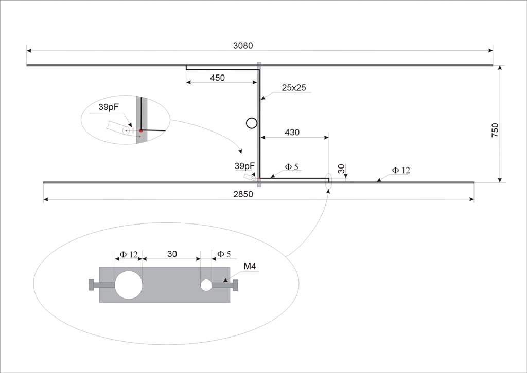
Wymiary anteny po modyfikacji











Warsaw Time
UTC Time